葡萄棚をイメージしたゼロエネルギービルディング
キトー山梨本社
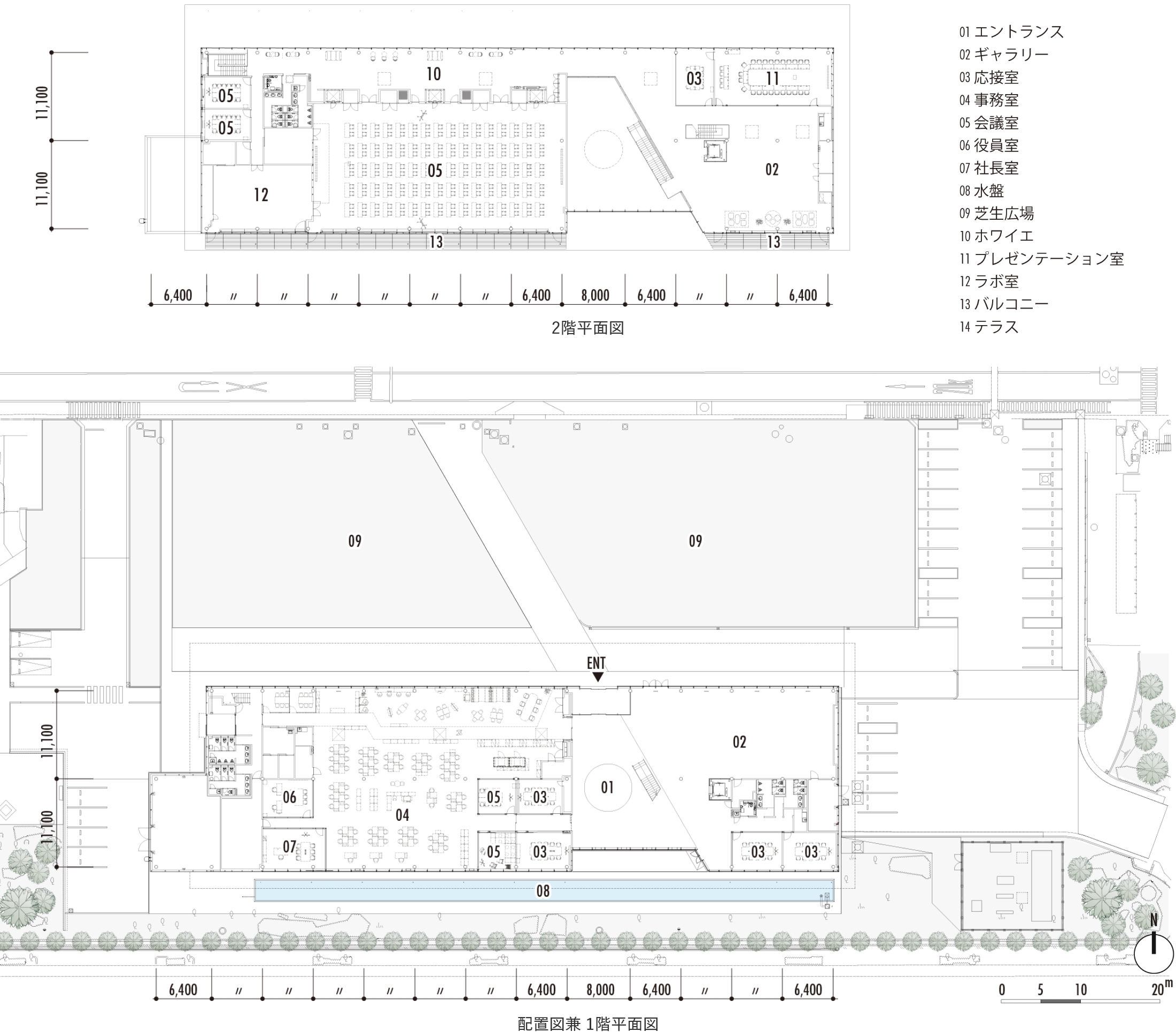
グローバル展開するマテリアルハンドリング機器メーカーの新社屋。厳しくも豊かな甲府盆地の⾃然環境において、農業⽣産効率を⾼めた甲州式葡萄棚をイメージし快適性と環境性能の両⽴を図った。
汎⽤材を主とした梁成250mmの鉄⾻によるフィーレンデール架構で、最⼤22mスパンの無柱空間を実現。豊富な井⼾⽔を利⽤した空調システムの冷温⽔管は、架構の上弦材と下弦材間を配管スペースとして有効活⽤している。
屋根は透過性の⾼いエキスパンドメタルで覆い⽇射遮蔽を図りつつ、換気⽤トップライトからの直接光や⽔盤からの反射光を室内に拡散させることで、葡萄棚の下にいるようなやわらかな光と⾵の⼼地よさを感じられる空間を創出している。
Information
- 所在地
- 山梨県中巨摩郡昭和町築地新居2000
- 建築主
- 株式会社キトー
- 主要用途
- 事務所
- 工期
- 2021年09月~2023年10月
- 敷地面積
- 162,713.42㎡
- 延床面積
- 3,571.60㎡
- 階数
- 地上2階 塔屋1階
- 主構造
- 鉄骨造
- 受賞
- 2024年 日本空間デザイン賞 サステナブル空間賞
2024年 グッドデザイン賞
2024年 鈴木禎次賞 優秀賞
2024年 インテリアプランニングアワード 入選
2024年 JIA日本建築大賞 JIA優秀建築100選
2024年 JIA環境建築賞 優秀賞
2024年 環境・設備デザイン賞 BE賞
2024年 The World Architecture Festival 2024 入選
2024年 Architectural Design Awards 2024 佳作
2024年 International Design Awards(IDA)2024 銀賞
2024年 Design for Asia Awards 銀賞
2024年 International Architecture Awards 2025 WINNER
2025年 Green Good Desgin 2025 Green Good Desgin Award
- 雑誌掲載
- 日本建築学会作品選集 2025
新建築 2025年4月号
ディテール 2025年1月号
FRaU 2025年1月号

梅原 豊
(建築設計)

中楯 哲史
(建築設計)

齊藤 康男
(建築設計)

田中 荘太郎
(設備設計)